Zuidendijk 427

Zuidendijk 427

DORDRECHT

verkocht

Ook uw woning succesvol verkopen? Neem dan contactmet ons op

Gratis waardebepaling

Omschrijving

HEERLIJKE BUITENRUIMTE MET PLEK VOOR AL JE DIEREN!


Deze woning aan de Zuidendijk 427 biedt een uitstekende combinatie van comfort, ruimte en mogelijkheden. De woning beschikt over twee slaapkamers en is gelegen op een perceel met een riante voortuin als ook een zeer ruime zij- en achtertuin op het zuiden, waardoor het een ideale plek is voor tuinliefhebbers. Bovendien is er een garage aanwezig en twee paardenboxen, perfect voor liefhebbers van paarden of als extra bergruimte.

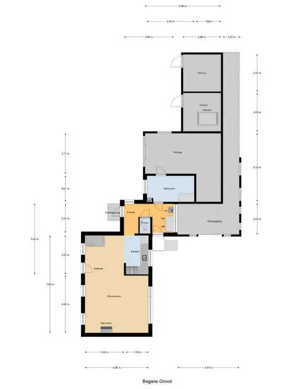
Begane Grond:

De entree van de woning biedt toegang tot een hal met een toilet ruimte, voorzien van een staand toilet en fontein. Via de hal bereikt u de wasruimte, die tevens de opstelling van de CV-combiketel (Remeha Avanta) herbergt. Vanuit de wasruimte heeft u toegang tot een praktische bijkeuken en de achtertuin. De doorzon woonkamer is heerlijk licht door de grote ramen aan zowel de voor- als achterzijde, en beschikt daarnaast over een sfeervolle haard. De open keuken is voorzien van diverse inbouwapparatuur en biedt voldoende kastruimte.

Eerste Verdieping:

Op de eerste verdieping bevinden zich twee prima slaapkamers. De badkamer is compleet ingericht met een douchecabine, wastafel, toilet en een ligbad, wat zorgt voor praktisch gebruiksgemak.

Buiten:

De woning biedt daarnaast veel opbergruimte, zowel binnen als buiten. De garage is zeer ruim en biedt voldoende ruimte voor meerdere voertuigen of opslag. De voormalige paardenboxen aan de achterzijde kunnen uiteraard voor diverse doeleinden worden gebruikt, van extra opslagruimte tot hobbyruimte.

Wat deze woning bijzonder maakt, is het grote buitenterrein. De zij- en achtertuin liggen ideaal op het zuiden en bieden volop ruimte voor het creëren van een buitenparadijs. Aan de achterzijde van de woning is bovendien een overkapping gerealiseerd, die zich over de gehele breedte van de garage en paardenboxen uitstrekt.

Deze woning is gelegen in de populaire wijk Sterrenburg in Dordrecht, een rustige en groene omgeving met veel voorzieningen in de nabijheid. Het winkelcentrum Sterrenburg ligt letterlijk om de hoek, waardoor dagelijkse benodigdheden eenvoudig te verkrijgen zijn. Bovendien is de ligging uitstekend qua bereikbaarheid, met goede verbindingen naar de omliggende steden en natuurgebieden.

Deze woning biedt alles wat je zoekt: ruimte, comfort, en een fantastische locatie!

Bijzonderheden:

* Rustige, doodlopende straat
* 10 zonnepanelen
* Zeer veel bergruimte in en om het huis
* Ruime kavel van 426 m2
* Mogelijkheid tot het creëren van slaapkamer en badkamer op de begane grond

ONZE TIP
Aankopen? Schakel je eigen NVM-aankoopmakelaar in! Jouw NVM-aankoopmakelaar komt op voor jouw belang en bespaart je veel tijd, geld en zorgen. Adressen van collega NVM-aankoopmakelaars vind je op Funda.

Toelichtingsclausule NEN2580
De Meetinstructie is gebaseerd op de NEN2580. De Meetinstructie is bedoeld om een meer eenduidige manier van meten toe te passen voor het geven van een indicatie van de gebruiksoppervlakte. De Meetinstructie sluit verschillen in meetuitkomsten niet volledig uit, door bijvoorbeeld interpretatieverschillen, afrondingen of beperkingen bij het uitvoeren van de meting. Indien bepaalde maten of oppervlaktes voor u van wezenlijk belang zijn, dan adviseren wij u deze na te meten.
Deze informatie is met de nodige zorgvuldigheid samengesteld. Hierbij zijn wij deels afhankelijk van informatie die wij van derden ontvangen. Indien bepaalde informatie voor u van wezenlijk belang is dan adviseren wij u deze op juistheid te controleren.Onzerzijds wordt geen aansprakelijkheid aanvaard voor enige onvolledigheid, onjuistheid of anderszins, dan wel de gevolgen daarvan. Alle opgegeven maten en oppervlakten zijn indicatief.
Lees meer

Kenmerken

Overdracht

Status
verkocht
Aanvaarding
in overleg

Bouw

Soort woning
woonhuis
Soort woonhuis
eengezinswoning
Type woonhuis
twee onder een kapwoning
Aantal woonlagen
2
Bouwjaar
1915
Onderhoud binnen
goed
Onderhoud buiten
goed
Voorzieningen
tv kabel, buitenzonwering, rookkanaal

Energie

Energielabel
F
Verwarming
cv ketel
Warm water
cv ketel
C.V.-ketel
combi-ketel, eigendom

Oppervlakten en inhoud

Woonoppervlakte
89 m²
Perceeloppervlakte
426 m²
Inhoud
506 m³
Inpandige ruimte oppervlakte
41 m²
Buitenruimte oppervlakte
27 m²

Indeling

Aantal kamers
3

Buitenruimte

Ligging
aan rustige weg, in woonwijk, beschutte ligging
Tuin
zijtuin met een oppervlakte van 175 m² en is gelegen op het zuiden

Garage / Schuur / Berging

Garage
aangebouwde houten garage
Parkeergelegenheid
openbaar parkeren, op eigen terrein
Schuur/berging
aangebouwd hout

Foto's

Plattegronden

Locatie

Eigenaar aan het woord

Beschrijving

“Na 25 jaar hier gewoond te hebben en na uit huis gaan van onze 2 kinderen is het voor ons tijd geworden om te gaan verhuizen.
Wij hopen dat de volgende bewoners net zo veel plezier gaan hebben met familie en vrienden van de zonnige tuin als dat wij hebben gehad. Er is ook een overdekt stuk terras en elektrische zonwering aanwezig zodat men bij heel warme dagen toch de schaduw op kan zoeken. En waar vindt je tegenwoordig nog een woning waarbij echt alles op loopafstand is te vinden.
Heb je 2 rechterhanden dan is deze dijkwoning misschien wel iets voor jou!

Kenmerken

  • Parken en dichtbij de Elzen
  • Medische voorzieningen zoals apotheek, ziekenhuis en huisarts
  • Openbaarvervoer, winkelcentrum en veel sociale voorzieningen

Vraag een bezichtiging aan of neem contact met ons op

Naam *
Telefoonnummer *
E-mailadres *
Bericht *