Westeind 47

Westeind 47

PAPENDRECHT

vraagprijs

verkocht

Ook uw woning succesvol verkopen? Neem dan contactmet ons op

Gratis waardebepaling

Omschrijving

Prachtige karakteristieke vrijstaande woning aan het Westeind

Deze schitterende vrijstaande woning aan het Westeind biedt een unieke combinatie van authentieke details en ruimte. Zowel de buiten- als binnenzijde van de woning ademen karakter, met onder andere bijzonder gevelmetselwerk, glas-in-loodramen, plafonds met ornamenten en een fraaie kamer-en-suite met klassieke schuifdeuren.

Met een royaal woonoppervlak van 222 m² biedt deze woning alle ruimte die u zich kunt wensen. De begane grond beschikt over een royale woonkamer en eetkamer in en-suite stijl, een grote werkkamer, een keuken en een toilet.

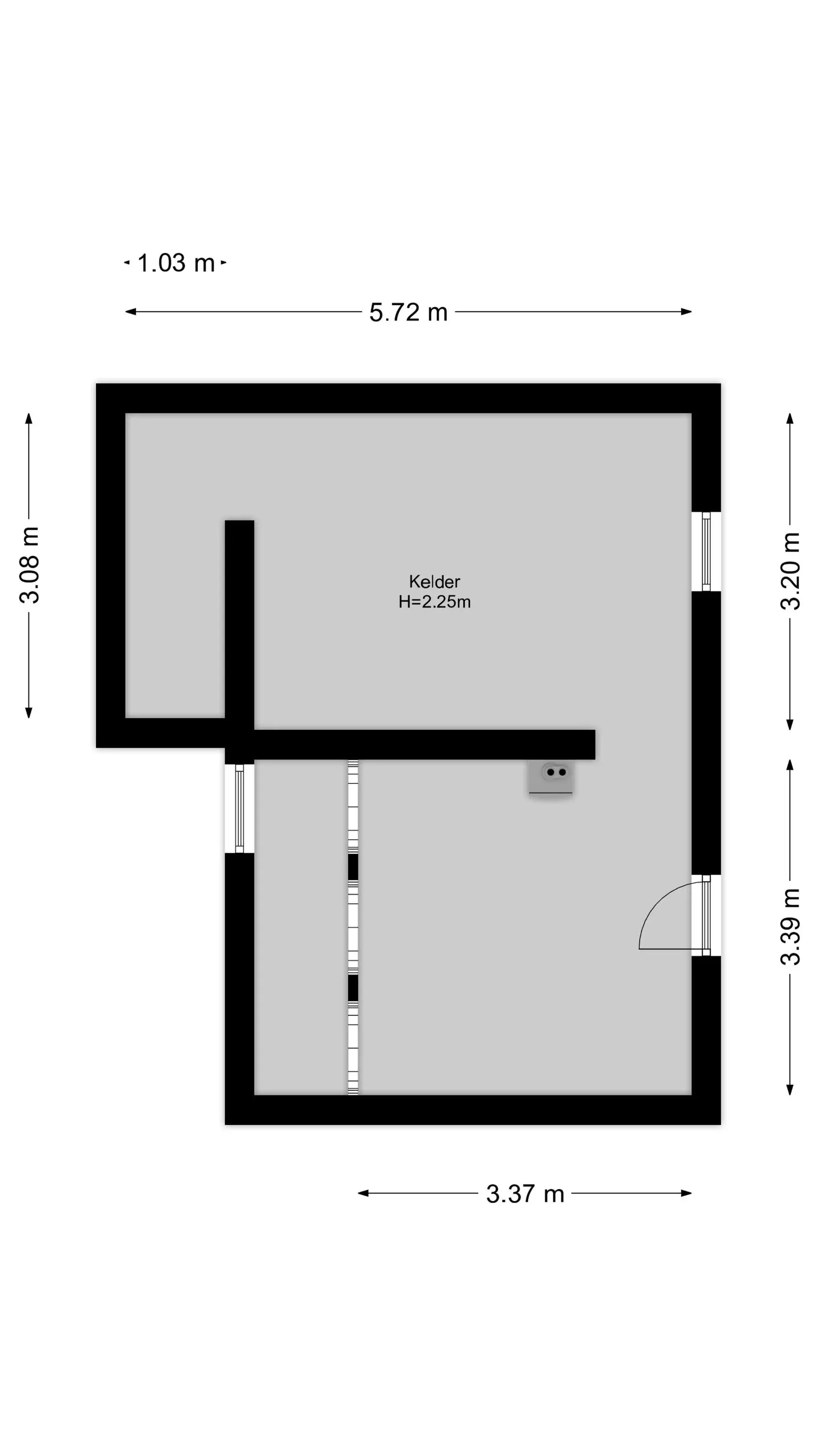
Op de eerste verdieping bevinden zich drie ruime slaapkamers, een badkamer, toilet en een inloopkast. Het onderhuis, dat via de buitenkant bereikbaar is, biedt veel extra ruimte en tal van mogelijkheden.

De grote, zonnige tuin is een waar paradijs, met een imposante aanlegplaats / kade van maar liefst 20 meter, ideaal voor wie van watersport of zwemmen houdt. Daarnaast biedt de woning parkeerruimte op eigen erf aan weerszijden van de woning.

Laat u verrassen en inspireren door de charme en mogelijkheden van deze bijzondere woning. Voor meer informatie, zoals de afmetingen, kunt u de bijgevoegde plattegronden raadplegen.

Kom langs en ontdek zelf de bijzondere sfeer van dit huis!

De bewoners over de bijzonderheden over Westeind 47:

Het huis werd in 1901 gebouwd voor de heer C. van Wageninge. Hij was graanhandelaar en in de achtertuin stond een graanschuur, De familie van Wageninge heeft in dit huis lang gewoond en daarna verkocht aan de familie Van Rossum, deze had de woning ongeveer 40 jaar in bezit. Daarna woonde hier Dick de Jongh, een elektricien met zijn gezin die de woning huurde van de familie Van Rossum. Eind 1984 is de woning verkocht aan de familie Gaal, de eigenaar waarvan wij de woning in 2011 hebben gekocht.

Het huis staat nog steeds bekend als: “Het huis van Van Rossum”. Op Westeind 45 en 43 stond tot een 5 jaar geleden een bedrijfspand voor kleinschalige ondernemingen, maar was daarvoor de machinefabriek agrarische machines van Van Rossum. In de jaren 50 en begin 60 van de vorige eeuw werden er ook brommers geproduceerd. De naam AVAROS brommer komt van de naam van de directeur A(nton) VA(n) ROS(sum). De brommer werd gemaakt met het Belgische merk Flandria
(zie boekje: AVAROS, een Belg uit Papendrecht van Gabriëlle Tielenburg en Ruud Verkerk). Op pagina 135 2 foto’s van Westeind 47 en een overzicht van de andere woningen van de familie Van Rossum.

Het huis heeft zeer veel authentieke details als glas in lood in de voorgevel, tochtdeur, schuifdeuren en het kozijn tussen achterkamer en serre. Ook de rijkversierde plafonds in voor-, achterkamer en kantoor zijn origineel.

De woning beschikt over een aanlegplaats van meer dan 20 meter. Van oorsprong was “De Geul” of “De Gantel” een aan- en afvoerroute voor bedrijven aan het Westeind. Voor de Papendrechtse brug (ca 1960) was er veel goederenvervoer over de rivier, vooral naar Dordrecht. De Gantel staat nog steeds in verbinding met de rivier met duikers. Scheepvaart beperkt zicht tot de Gantel, ongeveer 2 km.

Heel veel parkeerplaats op eigen terrein voor auto’s, auto’s van bezoekers, aanhangers en zelfs caravans. De woning ligt in de blauwe zone.

Alle nutsleidingen zijn in 2024/2025 opnieuw aangelegd op het Westeind en alle huisaansluitingen zijn vervangen behalve het elektra. Ook is er een mantelbuis aangelegd voor glasvezelaansluiting (Delta). Eind 2025 zal het Westeind helemaal opnieuw geasfalteerd, bestraat en heringericht zijn tot een autoluwe straat.
Lees meer

Kenmerken

Overdracht

Status
verkocht
Aanvaarding
in overleg

Bouw

Soort woning
woonhuis
Soort woonhuis
herenhuis
Type woonhuis
vrijstaande woning
Aantal woonlagen
3
Bouwjaar
1901
Onderhoud binnen
redelijk_tot_goed
Onderhoud buiten
redelijk_tot_goed
Voorzieningen
mechanische ventilatie, tv kabel, rookkanaal, natuurlijke ventilatie
Isolatie
dakisolatie, muurisolatie, vloerisolatie, gedeeltelijk dubbel glas

Energie

Energielabel
D
Verwarming
cv ketel
Warm water
cv ketel
C.V.-ketel
gas gestookte combi-ketel uit 2020 van Remeha Calenta Ace 40c HR 107 ketel, eigendom

Oppervlakten en inhoud

Woonoppervlakte
222 m²
Perceeloppervlakte
648 m²
Inhoud
893 m³
Inpandige ruimte oppervlakte
54 m²
Buitenruimte oppervlakte
14 m²

Indeling

Aantal kamers
7

Buitenruimte

Ligging
aan water, aan rustige weg, in woonwijk
Tuin
achtertuin met een oppervlakte van 648 m² en is gelegen op het zuidwesten

Garage / Schuur / Berging

Garage
geen garage
Parkeergelegenheid
op eigen terrein
Schuur/berging
inpandig

Foto's

Plattegronden

Locatie

Eigenaar aan het woord

Beschrijving

Wij zijn in ruim 100 jaar het vijfde gezin dat hier woont. Als je er eenmaal woont, wil je niet meer weg

Kenmerken

  • Evt kantoor aan huis
  • Autoluwe straat
  • Vlakbij De Meent
  • Groot, authentiek en royale tuin

Vraag een bezichtiging aan of neem contact met ons op

Naam *
Telefoonnummer *
E-mailadres *
Bericht *