Kamperfoeliestraat 8

Kamperfoeliestraat 8

DORDRECHT

vraagprijs

verkocht

Ook uw woning succesvol verkopen? Neem dan contactmet ons op

Gratis waardebepaling

Omschrijving

STARTERS, KLUSSERS EN STARTENDE KLUSSERS OPGELET!

Nu in verkoop, deze fijne tussenwoning aan een rustige straat in de geliefde wijk Dubbeldam!
De tijd heeft hier wel even stil gestaan, dus we zijn op zoek naar een koper die zijn handen uit de mouwen kan steken om deze woning weer helemaal bij de tijd te maken. Ben jij die koper? Bel dan snel met ons kantoor!

In de straat is er volop parkeergelegenheid, direct voor de deur. Verzorgingshuis "Het Parkhuis" ligt aan de overkant van de straat. De locatie is erg leuk. Met enkele minuten wandelen ben je op het winkelplein het Damplein. Op deze voormalige dorpskern kan je goed terecht voor de dagelijkse boodschappen bij de bakker de bloemenwinkel een snackbar en twee supermarkten. Aan de andere kant zit je aan de rand van Dubbeldam en wandel of fiets je zo de Nieuwe Dordtse Biesbosch in.

De wijk Dubbeldam is erg geliefd bij veel mensen, het is een rustige woonwijk die tot 1970 een zelfstandige gemeente is geweest. De wijk ademt nog steeds de dorpse sfeer uit. Er zijn mooie parken, de wijk is ruim van opzet, weinig hoogbouw en veel groenvoorzieningen. Qua (basis)scholen is er ruime keuze op loop- of fietsafstand.


Begane Grond:

De heerlijk groene voortuin geeft toegang tot de voordeur. De ruime hal geeft toegang tot de meterkast, de toiletruimte met staand toilet en fontein. Onder de trapopgang naar de verdieping is er nog een praktische bergruimte.

De keuken is eenvoudig en in een hoek opstelling geplaatst. Nu is dit nog een gesloten keuken, maar veel eigenaren halen de muur tussen de woonkamer en de keuken weg, om zo een grote leefkeuken te kunnen realiseren.

De woonkamer is een echte 'doorzon' woonkamer; ofwel de hele dag licht door je woonkamer, heerlijk! Als je ook nog een open keuken realiseert, heb je pas echt een zee van ruimte, want vergis je niet; deze woning is ruim 6 meter breed!


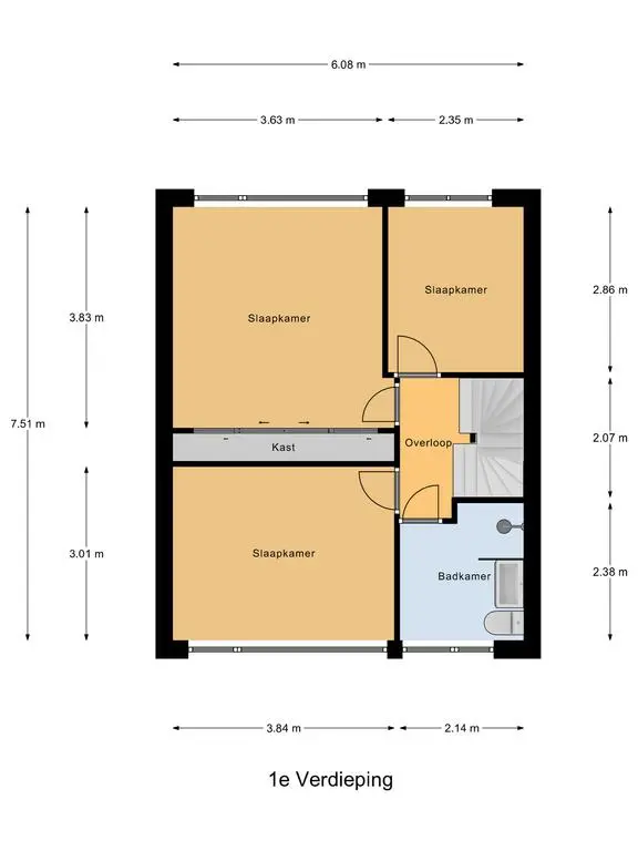
Eerste Verdieping:

De centrale overloop geeft toegang tot alle slaapkamers, de badkamer en de trapopgang naar de verdieping.
De badkamer is bescheiden, grotendeels betegeld en voorzien van een douche, toilet en vaste wastafel.

De slaapkamers zijn van een prima formaat en variëren van ruim 6 m2 naar bijna 14 m2! Daarnaast hebben de grote slaapkamers nog de beschikking over een vaste kastenwand. Je opbergruimte is dus ook in een klap geregeld!


Tweede Verdieping:

Middels een vaste trap bereik je de zolderverdieping. Hier bevindt zich de opstelling voor de CV en is er alle plek om een grote slaapkamer te realiseren. Dankzij het dakkapel aan de achterzijde wordt deze ruimte ook extra groot!


Buiten:

Een kleine voortuin zorgt voor voldoende ruimte en privacy naar het voetpad en de straat. De achtertuin is bijna 9 meter diep en is heerlijk gelegen op het Westen. Een heerlijke plek om de dag af te sluiten, een barbeque te doen met vrienden of gewoon te genieten van de ondergaande zon.


ER IS EEN MOGELIJKHEID TOT HET KOPEN VAN EEN GARAGE VOOR € 28.500,- K.K. DEZE GARAGE VALT BUITEN DE HUIDIGE VRAAGPRIJS!

Bijzonderheden:

* Bijzonder kindvriendelijke omgeving
* Diepe tuin op het westen
* Handige klusser gezocht
* Alle mogelijkheden om deze woning te vergroten
* Wonen met een "dorps" gevoel

ONZE TIP
Aankopen? Schakel je eigen NVM-aankoopmakelaar in! Jouw NVM-aankoopmakelaar komt op voor jouw belang en bespaart je veel tijd, geld en zorgen. Adressen van collega NVM-aankoopmakelaars vind je op Funda.

Toelichtingsclausule NEN2580
De Meetinstructie is gebaseerd op de NEN2580. De Meetinstructie is bedoeld om een meer eenduidige manier van meten toe te passen voor het geven van een indicatie van de gebruiksoppervlakte. De Meetinstructie sluit verschillen in meetuitkomsten niet volledig uit, door bijvoorbeeld interpretatieverschillen, afrondingen of beperkingen bij het uitvoeren van de meting. Indien bepaalde maten of oppervlaktes voor u van wezenlijk belang zijn, dan adviseren wij u deze na te meten.
Deze informatie is met de nodige zorgvuldigheid samengesteld. Hierbij zijn wij deels afhankelijk van informatie die wij van derden ontvangen. Indien bepaalde informatie voor u van wezenlijk belang is dan adviseren wij u deze op juistheid te controleren. Onzerzijds wordt geen aansprakelijkheid aanvaard voor enige onvolledigheid, onjuistheid of anderszins, dan wel de gevolgen daarvan. Alle opgegeven maten en oppervlakten zijn indicatief.
Lees meer

Kenmerken

Overdracht

Status
verkocht
Aanvaarding
in overleg

Bouw

Soort woning
woonhuis
Soort woonhuis
eengezinswoning
Type woonhuis
tussenwoning
Aantal woonlagen
3
Bouwjaar
1969
Onderhoud binnen
redelijk
Onderhoud buiten
redelijk_tot_goed
Voorzieningen
tv kabel, rookkanaal, natuurlijke ventilatie
Isolatie
geen isolatie

Energie

Energielabel
C
Verwarming
cv ketel
Warm water
cv ketel
C.V.-ketel
(gas gestookt combiketel, eigendom)

Oppervlakten en inhoud

Woonoppervlakte
114 m²
Perceeloppervlakte
167 m²
Inhoud
390 m³
Bergruimte oppervlakte
22 m²

Indeling

Aantal kamers
5

Buitenruimte

Ligging
in woonwijk, beschutte ligging
Tuin
achtertuin met een oppervlakte van 54 m² en is gelegen op het westen

Garage / Schuur / Berging

Garage
vrijstaande stenen garage
Parkeergelegenheid
openbaar parkeren
Schuur/berging
vrijstaand steen

Foto's

Locatie

Vraag een bezichtiging aan of neem contact met ons op

Naam *
Telefoonnummer *
E-mailadres *
Bericht *