Doelstraat 23

Doelstraat 23

DORDRECHT

vraagprijs

verkocht

Ook uw woning succesvol verkopen? Neem dan contactmet ons op

Gratis waardebepaling

Omschrijving

Zou u ook in het rijtje van eigenaren willen behoren van dit fraaie pandje, wat verscholen ligt aan de Doelstraat 23 te Dordrecht? Dat is dan maar een heel klein rijtje en toch zeer uniek te noemen.

U gaat dan de 3e eigenaar worden. Sinds de 14e eeuw is de Doelstraat in bezit van de Gemeente Dordrecht en vanaf 1836 in het bezit van de Vereniging Loge La Flamboyante.

De muur die we terugzien in de fraaie en ruime achtergelegen tuin dateert van laat 16e eeuw, nogal wat historie om naar te kijken. Dat niet alleen, het is ook echt een genot om in de tuin te zitten, van alle hectiek in de binnenstad afgesloten alsof u in een oase verkeert.

Het is hier echt wonen in het hart van de stad, maar dan met rust, ruimte én geschiedenis
Dus als u altijd al heeft willen wonen op een unieke plek waar de sfeer van de stad en de rust van een verborgen tuin samenkomen? Dan is deze bijzondere tussenwoning absoluut het ontdekken waard! Verborgen achter “de Munt” en grenzend aan een prachtige 16-eeuwse stadsmuur, vindt u hier een oase van rust – midden in het bruisende hart van de stad.

De woning beschikt over twee gezellige woonkamers, perfect voor wie graag afwisselt tussen ontspannen en ontvangen. De ruime keuken biedt volop mogelijkheden voor culinaire creativiteit en staat, gescheiden door de ruime en lichte hal toch in verbinding met de aangrenzende tuin – een waar verlengstuk van de woonruimte, waar u in alle privacy geniet van de zon, het groen en de stilte.

Met twee comfortabele slaapkamers is er ruimte genoeg voor stellen, singles of een klein gezin. Of misschien een fijne werkkamer aan huis? De indeling is praktisch en tegelijkertijd sfeervol, met nog volop mogelijkheden om het helemaal naar eigen wens te maken.

Wat deze woning écht uniek maakt is de ligging: direct in het centrum, waar historie voelbaar is in elke steen, maar waar u ook zo het stadscentrum inloopt voor een terrasje, uw favoriete boetiek of een snelle boodschap. En dat alles zonder in te leveren op rust en privacy.

Een zeldzaam plekje dat je moet voelen om te geloven.

Bent u op zoek naar een woning die anders is dan anders – met karakter, comfort én een verhaal? Kijkt u dan alvast even op doelstraat23.nl en daarna nodigen we u van harte uit voor een bezichtiging. Kom zelf de sfeer proeven, de stilte ervaren… en wie weet wordt dit straks uw nieuwe thuis, ik zal u in ieder geval met alle liefde en plezier een rondleiding geven.

Algemeen;
Monument nr 13315
HUIS van alleen parterre (XVII) met Empire schuiframen en driezijdige erker met luiken. Zadeldak, links afgesloten door een puntgevel met vlechtingen.

Gebouw van eenvoudige doch harmonische architectuur en van oudheidkundige waarde.

Goten voor- en achterzijde zijn vernieuwd
Nokvorsten zijn vervangen cq vastgelegd
Niet zelf bewoners clausule van toepassing
Tuin wordt her-ingemeten

Indeling;
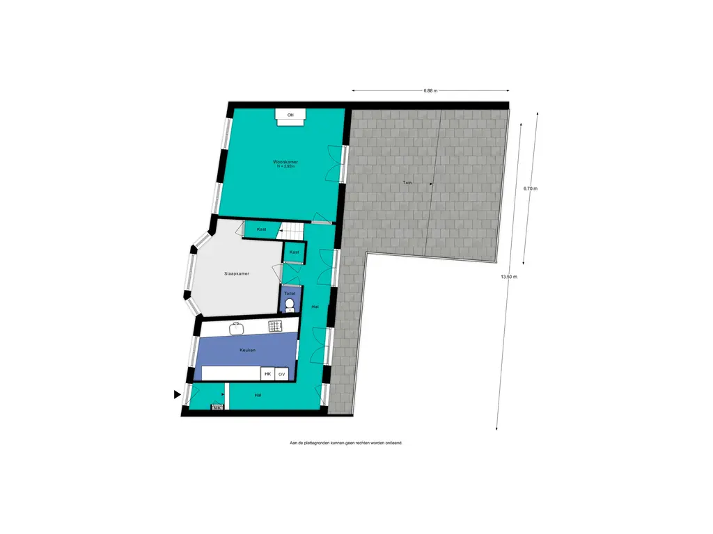
Entree, gang welke door de hele woning doorloopt en diverse mogelijkheden geeft voor toegang tot de tuin.
Gesloten keuken met diverse apparatuur, naastgelegen de 2 woonkamers (of eventueel een werk of -slaapkamer).

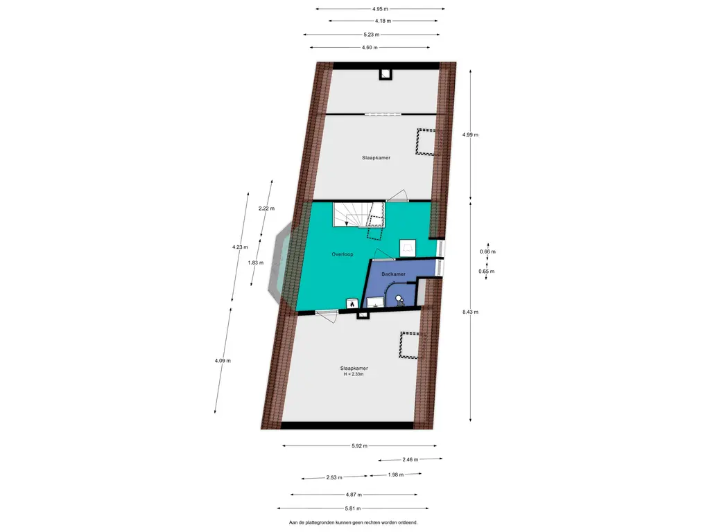
Toegang middels een afgesloten trappenhuis tot de boven gelegen slaapkamers en badkamer.
Boven de slaapkamers is tevens een ruime zolderruimte aanwezig.

Via de diverse raam/deurpartijen in de gang is er toegang tot de achtergelegen ruime tuin.

Oplevering kan spoedig.
Lees meer

Kenmerken

Overdracht

Status
verkocht
Aanvaarding
in overleg

Bouw

Soort woning
woonhuis
Soort woonhuis
eengezinswoning
Type woonhuis
tussenwoning
Aantal woonlagen
2
Bouwjaar
1400
Onderhoud binnen
goed
Onderhoud buiten
goed
Voorzieningen
tv kabel, rookkanaal, dakraam, natuurlijke ventilatie

Energie

Verwarming
cv ketel
Warm water
cv ketel
C.V.-ketel
gas gestookte cv-ketel uit 2012 van Remeha Cerra, eigendom

Oppervlakten en inhoud

Woonoppervlakte
134 m²
Perceeloppervlakte
398 m²
Inhoud
527 m³
Inpandige ruimte oppervlakte
2 m²

Indeling

Aantal kamers
4

Buitenruimte

Ligging
aan rustige weg, in centrum, beschutte ligging
Tuin
achtertuin met een oppervlakte van 46 m² en is gelegen op het zuidoosten

Garage / Schuur / Berging

Garage
geen garage
Parkeergelegenheid
openbaar parkeren, parkeervergunningen

Foto's

Plattegronden

Locatie

Vraag een bezichtiging aan of neem contact met ons op

Naam *
Telefoonnummer *
E-mailadres *
Bericht *